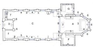
- Indeling van de kerk
- Beschrijving van de kerk
- Beschrijving in detail van de kerk
- Stok-rigister
- Het altaar
- Het rechter zij altaar
- Het linker zij altaar
- Communiebank
- De biechtstoel
- Koorgestoelte
- Doopvont en doopkapel
- De Preekstoel
- Het orgel
- De Kruisweg
- Monstrans
- Uurwerk op de toren
- Het H. oliesel
- Het kerkhof
A. Het Koor
Het koor (ook hoogkoor) is in de Westerse bouwkunst de ruimte van een kerk waar zich het hoofdaltaar bevindt.
Meestal is een kerk of kathedraal met het koor naar het oosten (Jeruzalem) gericht omdat Christus wordt gezien als ‘het Licht uit het Oosten’.
Het is de voornaamste plaats van de kerk, het ‘sanctuarium’ het ‘heilige der heiligen’, waar de eucharistieviering wordt gehouden.
De meubels in het koor zijn bestemd voor de viering van de eucharistie: de lezenaar waaraan de opening van de dienst en de dienst van het woord plaatshebben, en het altaar voor de eucharistische dienst.
Ontstaan van het koor
Het koor is ontstaan uit de apsis. De monniken en hun liturgie kregen een plaats buiten de kerk van het klooster, in de gewone parochiekerken en kathedralen.
Die liturgie bestond uit het dagelijks gebed op een aantal vaste momenten, waarbij ook gezongen werd.
De monniken kregen, vanwege hun bijzondere plaats in de kerkelijke gemeenschap, ook een bijzondere plaats in het kerkgebouw.
Zij kregen een afgescheiden plaats bij het hoofdaltaar. Het hoofdaltaar werd in de apsis geplaatst in plaats van tussen apsis en schip, in de kruising of de viering. De apsis werd verlengd in oostelijke richting en aan de zuid- en noordzijde van het op deze manier ontstane koor werden koorbanken geplaatst. De monniken zaten tussen schip en altaar in.
B. Het Doksaal
Een doksaal, ook wel doxaal geschreven (Frans: jubee; Duits: Lettner), is een houten of stenen wand
die in een kerk het schip scheidt van het priesterkoor. De term doksaal is afkomstig van het Latijnse woord voor rug:
dorsa, klaarblijk om hiermee de sluiting, de ‘rug’ van het koor aan te duiden.
De term jubee is ontleend aan “Jube, domine, benedicere” (Heer, wil mij zegenen) en geeft een belangrijke liturgische functie van het doksaal aan. Het is het verzoek van de diaken voordat deze zich voor het lezen van het evangelie naar de ambo bij het doksaal begaf.
C. Het Schip
Het schip is in de kerkenbouw de langgerekte ruimte in (meestal) west-oostrichting, die aan de oostkant wordt voortgezet door het koor. Evenwijdig aan het schip kunnen zich zijbeuken bevinden, die door arcaden van het middenschip worden gescheiden.
Als deze zijbeuken ongeveer even hoog en breed zijn als het middenschip spreekt men van een hallenkerk.
Eenvoudige kerken zonder dwars- en zijbeuken worden zaalkerken genoemd. De term “schip” is een leenvertaling uit het Grieks (naos).
Het schip is het deel van de kerk waar de kerkgangers plaatsnemen.
Tussen de kruising, die zowel tot het schip als tot de dwarsbeuken behoort, en het koor kan zich ter afsluiting een doksaal of een koorhek bevinden, waarachter zich het altaar bevindt.
D. De Narthex
De narthex is de voorhal of het portaal van een kerkgebouw . Oorspronkelijk was de narthex een voorhal en maakte deel uit van de galerij om het atrium (voorhof) van vroegchristelijke kerken. Later kreeg de narthex het karakter van een portiek. Men veronderstelt dat catechumenen (doopleerlingen) en penitenten (boetelingen) hier moesten staan. Waar het atrium later verviel, ging de narthex deel uitmaken van de kerk zelf en werd meer een besloten ontmoetingsruimte. De narthex ligt traditioneel aan de westzijde van de kerk.
E. Het Oksaal en de Toren
Het oksaal
Het oksaal, ook wel orgelgalerij of zangkoor genoemd, is een balkon aan de westzijde van het schip van een kerk.
Een oksaal biedt ruimte aan het zangkoor en het grote kerkorgel. Oorspronkelijk was het woord “oksaal” synoniem met “doksaal” , de afscheiding tussen het priesterkoor en het middenschip waarop zich meestal ook een orgelbalkon bevond. Later heeft de term, vooral in de katholieke parochies na de tijd van de Reformatie, een betekenisverandering ondergaan tot synoniem van orgelbalkon of -galerij.
De toren
De doelen voor de bouw van een kerktoren zijn divers. Torens werden gebouwd ter verdediging van de stad, bijvoorbeeld als uitzichtpunt tegen vijanden of brand. Daarnaast als blikvanger voor de stad en de kerk in het bijzonder.
In de toren worden de klokken opgehangen. Als dit niet mogelijk was, omdat het geld om een toren te bouwen ontbrak, is er soms een klokkenstoel. Op de top van de toren staat meestal een symbool. Op protestantse kerken staat meestal een weerhaan die de windrichting aan geeft. Katholieke kerktorens hebben meestal een kruis.
Meestal maakt de toren onderdeel uit van de kerk en is hij er aan vastgebouwd. In verschillende plaatsen staat de toren los van de bijbehorende kerk, zoals bijvoorbeeld in Garmerwolde of Oosterhesselen. In Utrecht ging het middenschip van de Dom bij een storm verloren, zodat de Domtoren apart kwam te staan. Het gehucht Westerdijkshorn (gem. Bedum) heeft alleen een toren en geen kerk. De diensten werden in een boerderij gehouden.
Beschrijving van de kerk
De kerkrekening uit 1675.
Item betaelt jet deel welcke dese kercke te doogen heeft in de courtoysie welcke den heere pastor heeft gegeven voor het gebruyck van de caemer daarin de kerckmeubelen tsedert april 1673 gevlucht hebben geweest tot einde april 1677….
Na de godsdienststrubbelingen en de oorlogen tijdens de tweede helft van de 16de eeuw en het het begin van de 17de eeuw tot aan het Twaalfjarig Bestand van 1609
waren de kerken in een zeer erbarmelijke staat van verval.
Veel ‘liturgische’ voorwerpen ontbraken en het weinige dat er was voldeed niet aan de kerkelijke voorschriften.
In 1673 tijdens de regering van Lodewijk de XIVde werden de kerkmeubelen naar Gent vervoerd en in 1677
wanneer alle gevaar voor plundering geweken was terug naar Gijzenzele gebracht. er was voldeed niet aan de kerkelijke voorschriften.
Stok - rigister
Halfweg de jaren 1800 vinden we het eerste “stokregister” terug. Dit register geeft een overzicht van alle toebehorende van de kerk.
Eerste Kapittel § I KerKgebauwen
art 1 De Batimenten onZer KerK toegewld aen den heyligen
Bavo patroon deZer Prochie Vernieuwt in het Jaer 177,
door het Voorheen Kapittel Van St Baefs in gend /’als
daer toe gehouden Zynde’/ kragtens een gedeelte der
Vrugttiende alhier de batimen der KerK beslaende eenen
grond Van dry aren 70 Centiaren geKoord op den indica-
tiven Staet der eygendommen deeZer gemeente onder den
N° Sectie.
2° het KerKhof groot Volgens plan Kadastrael Zeven aren
70 Centiaren geKend onder den N° der Zelve Sectie
met de daer rond staende Muren.
3° De Pastoryen het gone Van het pastoreel huys afhan-
gende groot Elf aren 96 Centiaren
§ II Inwendige Verciersels der KerK, gaud en Zilver
eene Zilvere Remonstrantie, eene Zilver Ciborie,
Een Zilveren doosken binnen Verguld, twee Zilvere potjens
aen ElKanderen Voor de H. olie en Chrisma een dito Voor
de berechting dry Zilvere Kroonen eene Voor onze lieVe
Vrouwe Eene Voor ’t KindeKen JeSu en Eene Voor de H.
Barbara Eenen Zilveren toren en Een Zweerd Voor de Zelve
heylige, Twee Reliquien met Zilver beZet Eene Van de
heylige Barbara en Eene Van den H Clemens Twee Zilveren
KelKen waeraf eenen Verguld een Zilveren Kruys eene
gaude Keten en Een paer gauden oorringen Voor onZe lieve
Vrouwe Een Zilveren Kruys en een gauden Keting Voor
de H Barbara
Koper en tin
Zes groote kopere kandelaers, vier kleyne dito tinne kandelaers,
Twee kopere hangende kandelaers, eene kopere lampe, eene idem similar
Een kopere wierookvat met de schelpe, twee kopere quinques, een kopere
Kruys, een idem similor, een kopere wijwater aker met den borstel
Eene kopere vonte
Beelden der kerk
Het beeld van den h Bavo voen den hoogen autaer Een beeld van onze
Lieve Vrouwe en eenen vergulden kroon Een beeld van de h Barbara en haar
Geverfde kroon
Standaers in de kerk en andere verciersels
Eenen standaert van de h Barbara eenen idem van O. L. Vrouwe twee
Kleyne roode standaers Eenen Baldaquin Eenen predikstoel Een wel
Gesnedene communiebank, 3 Canons gemeene 3 idem van similar eenen
Schoonen kruysweg eene kleyne orgel De kerk heeft 300 stoelen Eenen zetel
Twee kussens twee biegtstoelen twee zitbanken in den koor
Boeken
Twee mispaels eenen idem requium twwe processioneels twee
Castareels eenen van het oud bisdom van Mechelen en eenen vanhet bisdom
Van Gend eenen antiphunal
Lijnwaed
Acht alben met kant vier roketten met kant 6 overrokken voor de misse
Dienders en dry voor den koster 3 communiekleeden 6 dwaelen voor d’ auters
12 corporaels 15 kelkdoekskens 12 lavabodoekskens
Ornamenten
Twee witte casuyfels 2 roode idem 2 purpere en eenen groen casuyfel
Eenen zwarten idem en 2 {tunerins}(?) eene zwarte choorkappe nog eenen
Casuyfel eene grone stoule 2 roode stoulen 2 witte idem eene purpere
Idem en eene idem zwarte
Verciersels van onze Lieve Vrouwe
3 Voilen 2 mantels 3 witte kleedsels en een blauw
Idem van de heylige Barbara
3 voilen 2 mantels 2 roode kleedsle en een purper
Antipendia
Een antipendium voor de hoogen autaer voor alle {couluirim}(?) een idem
Zwart
Voor de Begraevernissen
2 zwarte baerkleeden een idem wit eene schoone kroone eenen
Draegstoel eene baere en zes kouten kandselaers
Andere voorwerpen in de sacristaje
Eene staende horlogie 4 kassen voor d’ornamenten en ander kerk
Gerief Een kasken inhoudende de papieren der kerk staende in de
Pastory
Op den toren
Eene klokke
Of deze lijst volledig is, is zeker de vraag want de pastoor liet onder elk onderwerp nog enkele regels vrij om deze – later – aan te vullen?
We moeten wachten tot 1972 eer we terug een nieuwe inventaris aantreffen.
Toch weten we dat onze kerk vele vermeldenwaaridge kerkkeubelen in haar bezit heeft.
Het Altaar
Halfweg de jaren 1800 vinden we het eerste “stokregister” terug. Dit register geeft een overzicht van alle toebehorende van de kerk.
Het altaar – Hoofd- of portiek altaar. (zie eveneens “De Steen van Gijzenzele”)
Het altaar
Het altaar symboliseert Christus. Daarom kust en bewierookt de voorganger het altaar. In de eerste eeuwen werd de eucharistie gevierd in een huis aan de eettafel, waardoor de naam ‘huiskerk’ ontstond. Op de verjaardag van de sterfdag van een martelaar werd de eucharistie gevierd in de catacomben op het boogbankgraf (arcosolium), gevormd door een boog boven het graf, in een kleine kamer (cubiculum).
Drie hoofdtypes
Vanaf de bouw van de kerken ontstonden drie altaartypes: het massieve altaar, het grafaltaar en het tafelaltaar. Ze staan elk symbool voor een theologische zienswijze op het
wezen van de eucharistieviering. Alle altaartypes en hun varianten hebben altijd bestaan.
Het massieve altaar is het oudste type maar wordt nog in vele hedendaagse kerken opgericht. Het verwijst naar Christus als de rots.
Op of bij het altaar staat het licht als symbool van Christus ‘het Licht van de wereld’.
Het grafaltaar is het symbool van Christus’ dood. Het bestaat uit een sarcofaag, met of zonder een uitbeelding van de gestorven Christus of de Graflegging. Het grafaltaar is geïnspireerd op het graf van de martelaren in de catacomben. Het gebruik ontstond van een altaarsteen met enkele relieken van martelaren in het bovenblad van het altaar te plaatsen.
Het tafelaltaar symboliseert de maaltijd des Heren, waar Christus ons allen als zijn gasten uitnodigt. De eucharistische maaltijd verwijst naar het Laatste Avondmaal en is ook de voorafbeelding van het eeuwige gastmaal waar de Heer zelf zal rondgaan om te bedienen. Overeenkomstig de liturgische hervorming heeft het Tweede Vaticaans Concilie (1962-1965) de voorkeur gegeven aan het tafelaltaar, gekeerd naar of middenin de gemeenschap opgesteld. Het Concilie van Trente (1545-1563) verplichtte het tabernakel op het altaar te plaatsen. Bij het invoeren van het tafelaltaar wordt meestal het vroegere altaar gebruikt als Heilig-Sacramentsaltaar met het tabernakel, waarin de geconsacreerde hosties worden bewaard.
Met de heropleving van de martelaren- en heiligencultus door de Katholieke Hervorming. werd het grafaltaar uitgebouwd tot het weelderig barokke portiekaltaar. Het bestaat uit een grafaltaar en een portiek van kolommen en een bovenstuk als een doorkijk op een schilderij of een beeldhouwwerk zoals de verrijzende Christus, de tenhemelopneming van Maria, de dood van een martelaar. Een portiekaltaar symboliseert de overwinning van het leven op de dood, de doortocht van het aardse leven naar de hemelse heerlijkheid. Op de grote feestdagen werd het grafaltaar versierd met een rijkelijk geborduurd voorhangsel (antependium).
Het altaar in de kerk van Gijzenzele is toegewijd aan de heilige Bavo. Het is een typisch barokmeubel uit de 17e eeuw bekroond met een vrij monumentaal portiekretabel. Het is vervaardigd ui t vrij dunne gemarberde houten panelen en in de sokkels van de zuilen die het geheel flankeren zijn kleine deurtjes. Na de verwoesting door de beeldenstorm werden in onze kerken monumentale barokke portiekaltaren geplaatst.
Het bevat een zwaar altaar blad in blauwe Doornikse kalksteen. Dit altaarblad zou waarschijnlijk nog afkomstig zijn van het vroegere romaans altaar. De meeste portiekaltaren hebben als tafel een grafaltaar in de vorm van een sarcofaag.
Dat gebruik gaat terug op de viering van de eucharistie op het graf van een martelaar in de catacomben, en leefde met de Katholieke Hervorming terug op, door de martelaren- en heiligenverering die daarmee gepaard ging.
Het rechter zij altaar
Communiebank
De communiebank
De communiebank, een knielbank waarop de gelevigen neerknielden voor het ontvangen van de h. communie, werd versied met motieven in verband met de eucharistie. Aan de communiebank was een witte linnen doek, communiedwaal, bevestigd die de gelovigen tijdens het onvvangen van de communie onder de kin uitspreidden. Onder de witte dwaal was een communiekleed bevestigd dat buiten de mil kon omgeslagen worden over de communiebank.
De communiebank gold tevens las koorafsluiting. Links en rechts was er een draaistuk dat openstond tijdens de kerkdiensten.
Het is een nogal verdienstelijk in eikenhout gesneden kunstwerk uit de 17e eeuw, met panelen met Mannaoogst, hostiedragende kelk, het lam van de Apocalypis en de Ark van het Verbond, medaillons met busten van Jezus en Maria.
Merkwaardige gebeurtenis rond de communiebank van Gijzenzele
In 1968 laat pastoor Jozef Van Vlaenderen door architect Bressens uit Gent een dossier opstellen voor de herstelling van het meubilair. Bij de opmaak van dit dossier wordt vastgesteld dat de communiebank welke in de inventaris is opgenomen ontbreekt. De architect stelt het bisdom in kennis van de verdwijning van de communiebank.
Na enig speurwerk kwam de pastoor al vlug te weten waar de communiebank te zoeken was. Na vele onderhandelingen wou de onrechtmatige eigenaar van geen wijken weten en hield de bank voor zich, verklarende dat het een gift was van de vroegere pastoor. Het werd een lastige zaak, doch de pastoor kreeg de opdracht de zaak in der minne te regelen.
Maar de tegenpartij stelde steeds nieuwe en moeilijkere eisen voor de teruggave met het doel “alles op de lange baan te schuiven” en zo toch de communiebank toch te mogen behouden.
Na 10 maanden onderhandelen werden de provinciale diensten op de hoogte gebracht en ging de zaak aan het rollen voor de correctionele rechtbank. Deze besliste dat de communiebank moest teruggegeven worden, maar verklaarde zich verder onbevoegd.
In januari 1970 stond de communiebank terug in de kerk van Gijzenzele.
De biechtstoel
De biechtstoelen staan tegen de zijwanden van de kerk. Ze dienen voor de private biecht, waarbij de biechtvader in het midden zit en de penitenten knielen aan de zijkanten. Dat was gedurende vele eeuwen de vorm om het boetesacrament te ontvangen.
Het gebruik van biechtstoelen werd voorgeschreven door de derde provinciale synode van Mechelen in 1607, Titulus V “De sacramento poenitentiae”.
Bij artikel 3 daarvan werd voorgeschreven dat er in de kerken waar er nog geen biechtstoelen waren deze binnen de 3 maanden na de afkondiging van de besluiten van de synode moesten worHet is niet vast te stellen wanneer er biechtstoelen in de kerk van Gijzenzele werden geplaatst.den geplaatst. Er werd nog een speciaal verbod bijgevoegd de biecht te horen van vrouwelijke biechtelingen buiten de voorgeschreven biechtstoelen tenzij in noodgevallen.
Waarschijnlijk werden er na de grondige verbouwingen van 1780 nieuwe biechtstoelen geplaatst, welke heden nog altijd in de kerk aanwezig zijn.
Koorgestoelte
Het koorgestoelte is een rij zitplaatsen tegen de wanden van het koor. In een kathedraal zingen de kanunniken en in een abdijkerk de monniken het getijdengebed. Oude parochiekerken zoals deze van Gijzenzele, bezitten ook soms een koorgestoelte dat kan worden gebruikt voor de medewerkers aan de liturgie, zoals zangers en lectoren.
De Doopvont en doopkapel
De doopkapel is gelegen achteraan in de kerk als symbolische aanwijzing dat de doopleerling eerst het sacrament van het doopsel moet ontvangen vooraleer deel te nemen aan de eucharistieviering van de gemeenschap. Het doopsel is een initiatiesacrament waardoor de dopeling deel uitmaakt van het lichaam van Christus, de Kerk. In de eerste eeuwen was de doopkapel, het baptisterium, een afzonderlijk gebouw buiten de kerk. De doopleerlingen werden daar gedoopt tijdens de Paaswake door onderdompeling in een dieper gelegen waterbassin, wat later is vervangen door het overgieten met water boven de doopvont.
De oude doopvont dagtekende uit de 18e eeuw.oopkapel is gelegen achteraan in de kerk als symbolische aanwijzing dat de doopleerling eerst het sacrament van het doopsel moet ontvangen vooraleer deel te nemen aan de eucharistieviering van de gemeenschap. Het doopsel is een initiatiesacrament waardoor de dopeling deel uitmaakt van het lichaam van Christus, de Kerk. In de eerste eeuwen was de doopkapel, het baptisterium, een afzonderlijk gebouw buiten de kerk. De doopleerlingen werden daar gedoopt tijdens de Paaswake door onderdompeling in een dieper gelegen waterbassin, wat later is vervangen door het overgieten met water boven de doopvont.
Maar op 26 augustus 1861 werd een nieuwe doopvont in de kerk geplaatst. Ze is gemaakt uit rood-witte marmer en afgedekt met een koperen deksel.
De preekstoel
De preekstoel staat in het kerkschip en bestaat uit het voetstuk, de kuip en het klankbord. Tot aan de liturgische hervorming werd op de preekstoel de preek gehouden, die nu gebeurt aan de lezenaar in het koor. Het klankbord heeft centraal een duif, het symbool van de heilige Geest, die de predikant verlicht en inspireert.
De preekstoel of kansel kwam pas algemeen in gebruik na het Concilie van Trente en de daarop volgende provinciale sunoden die de pastoors de verplichting oplegden op zon- en feestdagen onder de heilige mis, godsdienstonderricht te geven.
De preekstoel van Gijzenzele dagtekent uit de 17de eeuw, de trap is van recenter hout. De preekstoel bevat panelen met bloemornamenten.
Hij werd zwaar beschadigd tijdens de beschietingen in mei 1940.
Het orgel
Sinds de 15de eeuw was het kerkorg algemeen verspreid in de Zuidelijke Nederlanden. Men plaatste een draagbaar orgelkastje in het koor of op het doksaal.el reeds In Gijzenzele is de aankoop van een orgel voor het eerst terug te vinden in…..
Het huidige orgel is geen “Van Peteghem” orgel maar zou afkomstig zijn van een andere kerk of klooster en verkleind om in onze kerk te plaatsen. Het moet dringend gerestaureerd worden. Binnenkort vindt een historisch onderzoek plaats.
Oorspronkelijk stond de speeltafel achter het orgel.
Beschrijving van de kerk binnenin - De kruisweg - Godslamp - kerkmeestersbank - wierookvat
De Kruisweg
De kruisweg is een reeks van veertien staties, die het lijden en de dood van Christus uitbeeldt vanaf de veroordeling door Pilatus tot de graflegging, zodat men zijn lijdensweg kan volgen. De laatste tijd wordt, vooral op bedevaartsplaatsen, een vijftiende statie eraan toegevoegd: de verrijzenis van Christus.
Verlichting
Kaarsen en kandelaars
Kaarsen worden gewijd op Lichtmis (2 februari), het feest van de Opdracht van Jezus in de tempel.
Het licht geeft warmte en maakt blij, geeft uitzicht en hoop, doet leven en omgeeft de dingen met heerlijkheid.
Kerkmeestersbank
De kerkmeesters, de leden van de kerkraad die de materiële zorg van het kerkgebouw behartigen, en de dismeesters, die instonden voor de armenzorg, hadden een eigen bank in de kerk.
Godslamp
Door de derde provinciale synode van Mechelen in 1607 werd onder Titel VII, artikel 2, voorgeschreven dat der dag en nacht, of toch ten minste tijdens de goddelijke diensten, licht moest branden voor het tabernakel waar het heilig sacrament werd bewaard.Opgehangen in het koor of staande bij het tabernakel brandt de Godslamp of het eeuwige licht als teken van de eucharistische aanwezigheid van Christus en de waakzaamheid van de christenen.
Wierookvat
Voor 1685 behoorde een wierookvat, voor het wierookverbranden als teken van aanbidding en eerbied in de plechtige missen, begrafenissen, loven en processies, nog niet tot de liturgische gebruiksvoorwerpen. Wierook werd vanaf de godsdienstvrede van keizer Constantijn (313) gebruikt in de liturgie, als eerbetuiging aan het altaar en de bisschop, wat werd uitgebreid tot alle aanwezigen. Later kreeg het de betekenis van het gebed dat opstijgt naar Gods troon.
Wierook is ook symbool voor Gods heerlijkheid en aanbidding. Bij de uitvaart wordt het stoffelijk overschot van de overledene bewierookt als eerbetoon en als een gebed om het opstijgen naar de hemelse heerlijkheid.
Wijwatervat en wijwatekwast
Voor de besprenkeling van de gelovigen met wijwater voor de hoogmis tijdens het zingen van het “Asperges me” of Vidi aquam” (nu in onbruik geraakt), de besprenkeling van de katafalk of de lijkkist, bij de zegening van sommige voorwerpen of van een open graf voor de ‘zinking’ van de lijkkist, gebruikte de priester een wijwaterkwast die gedopt wordt in de wijwateremmer. In sommige parochies waren er onder het feodale regime moeilijkheden met de heer van het dorp die een bevoorrechte bediening opeiste of wiens voorrecht door zijn baljuw werd opgevorderd.
De Monstrans
De monstrans of ostensorium (van het Latijnse “ostendere,” dat “laten zien” betekent) is een onderdeel van het liturgisch vaatwerk in de Rooms-Katholieke Kerk. Het is een houder, meestal van metaal, waarin de geconsacreerde hostie wordt getoond. De barokken zonnemonstransen hebben de vorm van een stralende zon op een voet. Het midden van de zon bestaat uit twee ronde glazen plaatjes waarin de hostie wordt geklemd. Het halvemaanvormige knijpertje dat de hostie op zijn plaats houdt (zowel in toren- als in zonnemonstransen,) wordt een lunula genoemd.
De monstrans kent een lange geschiedenis. Het voorwerp komt voort uit de reliekhouders die op het altaar, tussen de kaarsen in, relieken van heiligen tentoonspreiden gedurende de Middeleeuwen. In de twaalfde eeuw werd ook het H. Sacrament van het Altaar, althans uitsluitend de H. Hostie, steeds meer uitgesteld in houders die qua vorm met de reliekhouders overeenkwamen. De eucharistische devotie nam een steeds grotere vlucht. Bleef dit voorheen beperkt tot de aanbidding voor het gesloten tabernakel, vanaf dan kwam ook het openlijke ronddragen van de zichtbare Hostie in gebruik.
De monstrans werd vroeger vooral gebruikt tijdens het Lof, een aparte plechtigheid ter ere van het Allerheiligste Sacrament op de zondagmiddag, en tijdens sacramentsprocessies.
De berechting of het Heilig Oliesel
Als iemand op de parochie zwaar ziek was of stervende werd hij berecht. Eerst werd de klok enkele malen geluid en dan vertrok de priester samen met een misdienaar te voet naar het huis van de zieke. De priester droeg het heilig oliesel en de misdinaar belde de ganse weg. Indien het al of nog donker was droeg hij ook een lantaarn.Parochianen die dit hoorden gingen aan de deur staan en als de priester voorbij kwam zetten ze zich op hun knieën.
Als het mogelijk was werd de ziek door de priester eerst de biecht afgenomen en kreeg hij de communie. De priester en de aanwezigen baden samen voor de genezing en de zieke werd gezalfd met het heilig oliesel.
Het kerkhof
Oude kerken hebben grafstenen in de vloer of in de muren gemetst, omdat tot het invoeren van de Code Napoléon kon worden begraven in de kerk. In veel dorpen ligt het kerkhof nog rondom de kerk, vanwaar de naam is afgeleid. Zowel de grafstenen als een rondgang op een kerkhof leren ons veel over hen die ons zijn voorgegaan in leven en dood, in geloof en hoop.















